Atelier dirigé par Manon Portera et Valentine Maeder (apropå)​​​​​​​​​​​​​​
Étudiant·e·x·s : N.Malumba
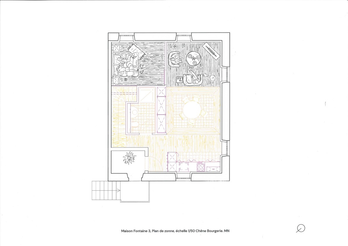
Ce projet a été développé dans le cadre de l’atelier Redécouvrir, consacré à la réhabilitation de logements existants appartenant à la coopérative La Codha à Chêne-Bougeries. L’atelier propose de repenser la rénovation comme un acte de redécouverte et de valorisation de l’existant, plutôt que comme une simple superposition de nouvelles couches matérielles.
Mon intervention s’inscrit dans cette approche, en cherchant à préserver et sublimer les matériaux déjà présents dans le bâtiment. Après un relevé sur site et un inventaire détaillé des éléments constructifs, j’ai choisi de réutiliser le parquet existant et d’y intégrer des matériaux récupérés chez SA Démolition, afin de composer de nouvelles trames au sol.
Le dessin du sol devient alors un outil spatial pour définir et articuler les espaces sans cloisonnement, en jouant sur les contrastes entre parquet et carrelage terrazzo. Cette approche permet de mettre en valeur les qualités matérielles et historiques du lieu tout en introduisant une nouvelle lecture de l’espace.
Ce projet met en avant une démarche de réemploi et de participation des habitant·e·x·s, les invitant à s’impliquer dans la transformation de leur lieu de vie et dans la redéfinition de ses matières, de son histoire et de son usage.
Photographe : Guillaume Collignon, HEAD — Genève

Back to Top